Casa de obra nueva en venta en La Conarda, Bétera

  • 595,000€

General

ID de propiedad: TV1602
  • Chalet, Promoción de obra nueva
  • Tipo de propiedad
  • 4
  • Dormitorios
  • 2
  • Baños
  • 166
  • Tamaño

Descripción

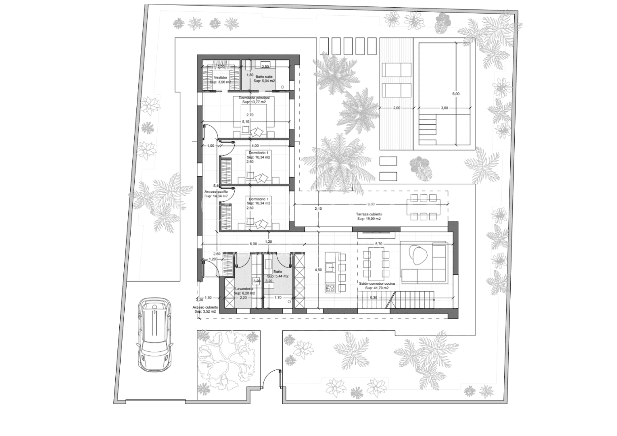
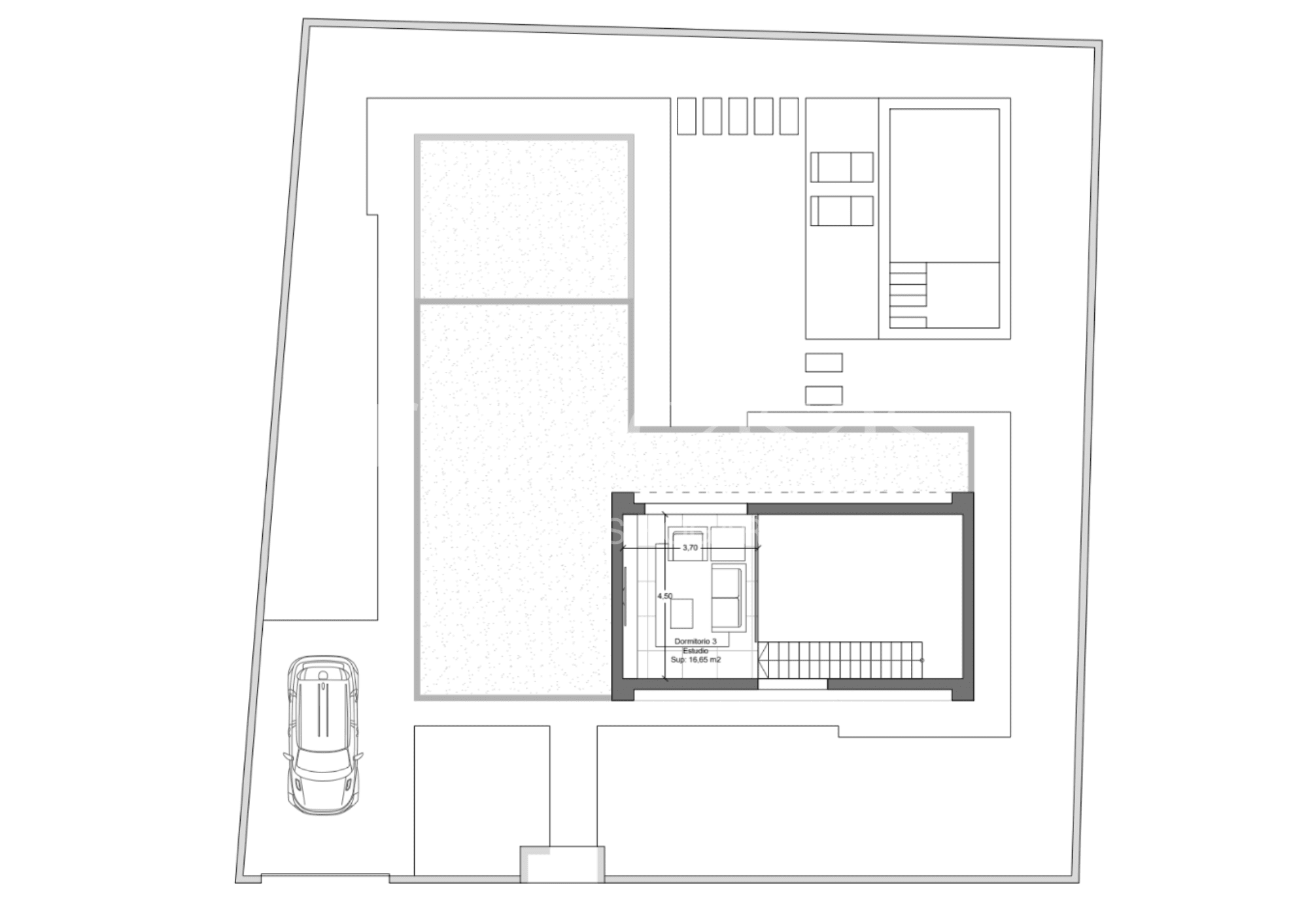
Esta casa de obra nueva en venta en La Conarda, Bétera, representa una oportunidad única para estrenar un hogar moderno, luminoso y diseñado con criterios de confort y calidad. Con 166 m² construidos, ofrece espacios amplios y bien distribuidos, ideales para familias que buscan equilibrio entre funcionalidad y estilo.

La vivienda cuenta con cuatro dormitorios generosos y dos baños completos. Cada estancia ha sido pensada para el día a día, con armarios empotrados que aportan orden y practicidad. La cocina, amueblada y equipada, se convierte en un espacio para disfrutar de la vida en familia o con amigos. Además, las escaleras interiores suman un toque de elegancia al diseño general.

En el exterior, el jardín y la piscina privada invitan a aprovechar el clima mediterráneo. La terraza es perfecta para comidas al aire libre o reuniones al atardecer, mientras que el diseño de la fachada refuerza el carácter moderno de la propiedad.

El interior destaca por su excelente iluminación natural, pintura lisa en todas las estancias y climatización por conductos frío/calor en cocina, salón, comedor y dormitorios. Estos detalles garantizan bienestar y eficiencia energética durante todo el año. La vivienda incorpora también videoportero, aportando seguridad y comodidad.

Esta casa de obra nueva en venta en La Conarda se entrega con acabados de alta calidad y la posibilidad de personalizar extras opcionales:

  • Iluminación: 6.000 € + IVA
  • Suelo radiante: 22.000 € + IVA
  • Placas solares: 8.500 € + IVA
  • BBQ/trastero de 15 m²: 12.000 € + IVA

Una vivienda pensada para quienes buscan un hogar moderno, cómodo y con espacios exteriores para disfrutar sin renunciar al diseño.

Disponible para estrenar, esta propiedad en La Conarda combina amplitud, estilo y calidez mediterránea en un entorno tranquilo y bien comunicado.

Solicita más información o agenda tu visita en nuestra página de contacto.

Detalles

Actualizado en septiembre 30, 2025 a 10:22 am
  • ID de propiedad: TV1602
  • Precio: 595,000€
  • Tamaño: 166
  • Dormitorios: 4
  • Baños: 2
  • Tipo de propiedad: Chalet, Promoción de obra nueva
  • Estado: Venta

Comparar listados

Comparar
Dpto. Comunicación
  • Dpto. Comunicación